8 800 101 22 22
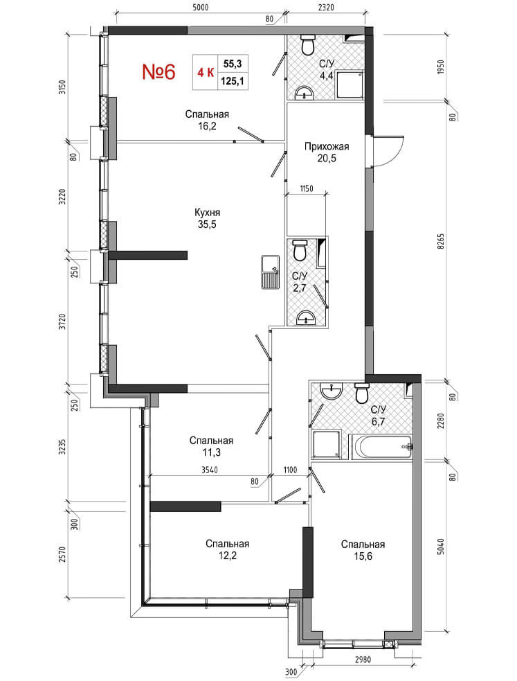
Назад Квартира №6
на этаже: 4
  • площадь: 125.1 м2
  • Этаж: 4 из 30
  • комнат: 4
21 329 550 ₽ 170 500 ₽/м2 в ипотеку от 106 648 ₽/мес
Заказать
обратный звонок
Оставьте ваши контакты, мы с вами свяжемся
Ваша заявка
получена

С вами свяжется наш менеджер
в ближайшее время