8 800 101 22 22
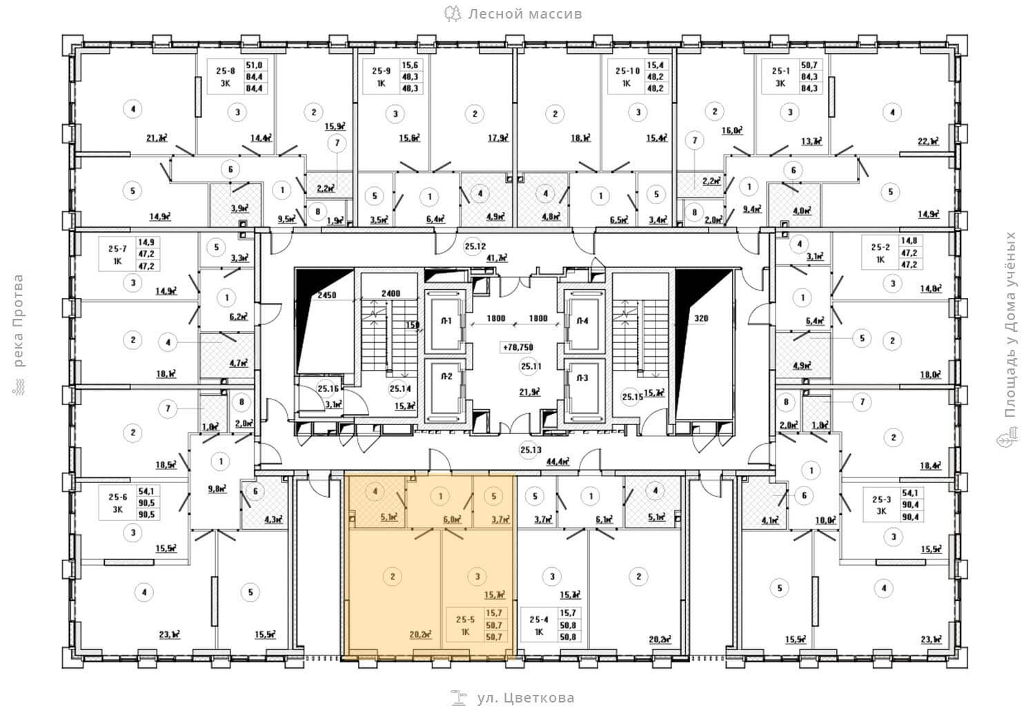
Назад Квартира №5
на этаже: 26
  • площадь: 50.7 м2
  • Этаж: 26 из 30
  • комнат: 1
10 494 900 ₽ 207 000 ₽/м2 в ипотеку от 52 475 ₽/мес
Заказать
обратный звонок
Оставьте ваши контакты, мы с вами свяжемся
Ваша заявка
получена

С вами свяжется наш менеджер
в ближайшее время