8 800 101 22 22
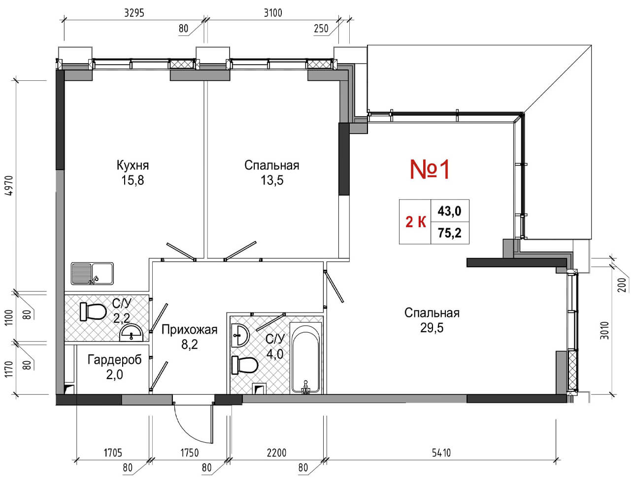
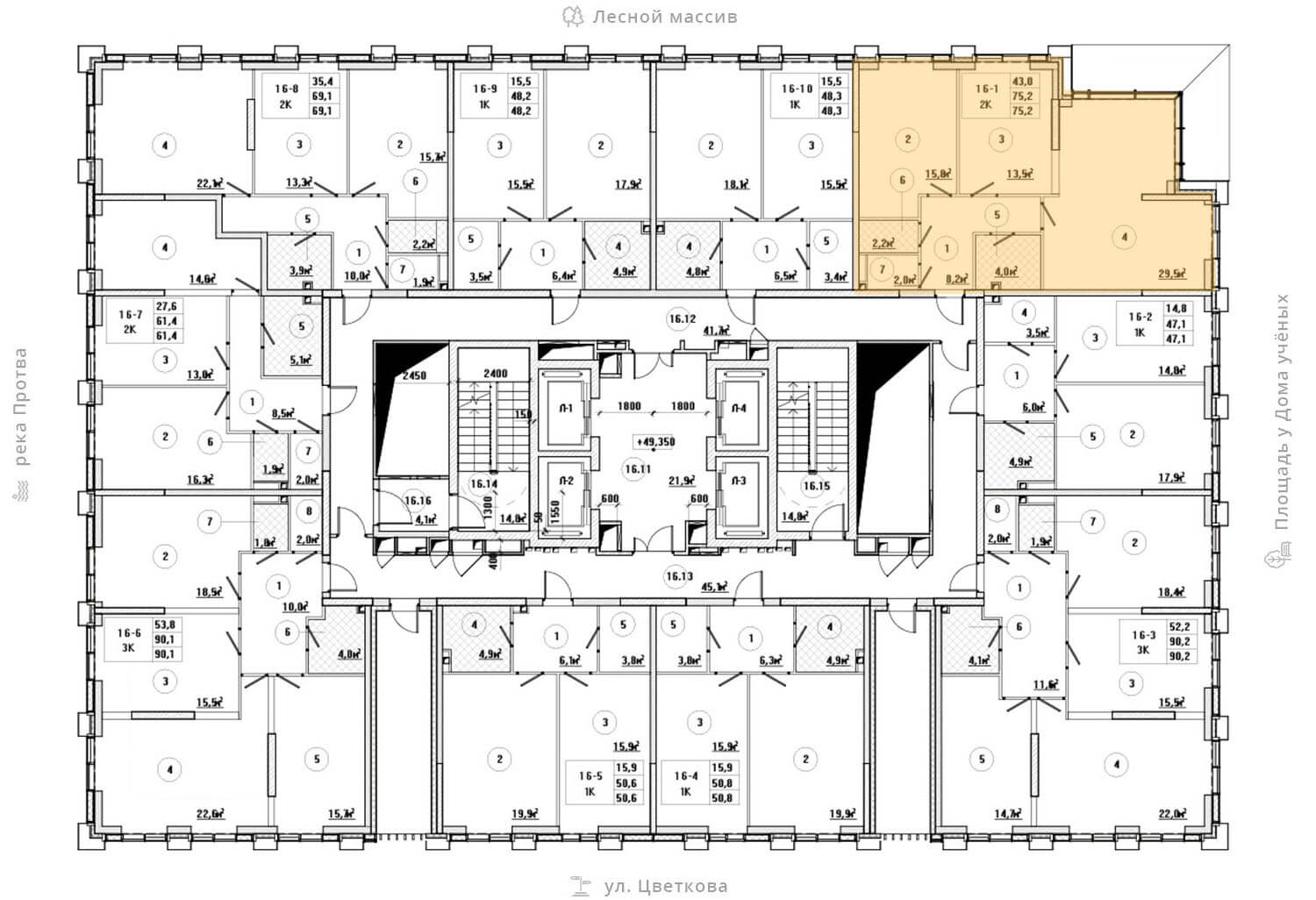
Назад Квартира №1
на этаже: 18
  • площадь: 75.2 м2
  • Этаж: 18 из 30
  • комнат: 2
14 588 800 ₽ 194 000 ₽/м2 в ипотеку от 72 944 ₽/мес
Заказать
обратный звонок
Оставьте ваши контакты, мы с вами свяжемся
Ваша заявка
получена

С вами свяжется наш менеджер
в ближайшее время