8 800 101 22 22
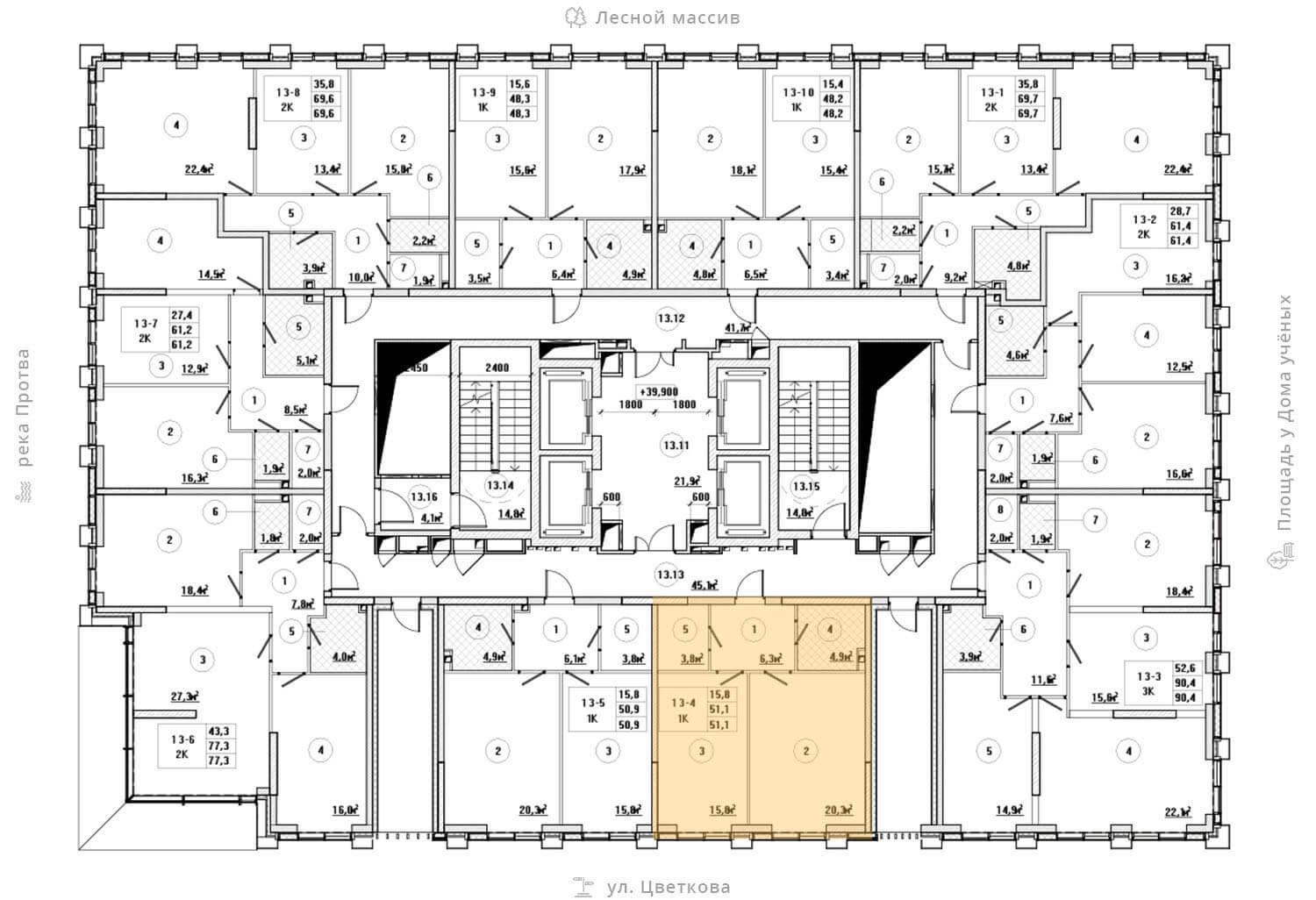
Назад Квартира №4
на этаже: 13
  • площадь: 51.1 м2
  • Этаж: 13 из 30
  • комнат: 1
8 993 600 ₽ 176 000 ₽/м2 в ипотеку от 44 968 ₽/мес
Заказать
обратный звонок
Оставьте ваши контакты, мы с вами свяжемся
Ваша заявка
получена

С вами свяжется наш менеджер
в ближайшее время