8 800 101 22 22
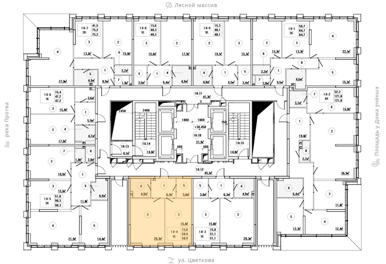
Назад Квартира №4
на этаже: 10
  • площадь: 50.9 м2
  • Этаж: 10 из 30
  • комнат: 1
8 754 800 ₽ 172 000 ₽/м2 в ипотеку от 43 774 ₽/мес
Заказать
обратный звонок
Оставьте ваши контакты, мы с вами свяжемся
Ваша заявка
получена

С вами свяжется наш менеджер
в ближайшее время